佐賀高橋設計室 since 1999/08

Works

今まで手掛けた建物を紹介します。


団地に浮かぶ素地

築50年を超える団地の最上階住戸のリノベーション。既存の仕上げを剥がし、コンクリートの素地と白い塗装、露出した設備によって空間を整えました。最小限の操作にとどめることで、団地の中に浮かぶような余白と、これからの暮らしを受け止める場をつくっています。
(リノベーション)


Interplay of...

川沿いに建つこの家は外部の景色を取り込み、内と外とのつながりを考えて設計しました。玄関を入ると螺旋階段のある大きな土間空間があり木製建具を開け放てば造作のベンチが設えてある外土間につながりより広がりを感じます。二階のLDKにはトップライトから光が注ぎ込み各部屋からは川の景色が楽しめます。(photo:新 良太)
(敷地面積: 50.71坪 延床面積: 37.07坪)


腰越の家(自邸)

建築家の自邸です。空調設備がないこの家は、窓の位置を工夫することにより自然の風を最大限取り込むように計画してあります。また、ハイサイドライトや大きな吹き抜けにより、開放感あふれる空間となっています。
(敷地面積:58坪 延床面積:45坪)


世田谷の家リノベ

1999年に竣工した佐賀和光設計の家を完成から20年後にリノベーションしたプロジェクトです。内部外部共に経年により痛んでいた部分を補修し、元のデザインを踏襲しながらも新しい物を加えていくことを考えました。(photo:新 良太)
(敷地面積: 30.23坪 延床面積: 34.36坪)


浄明寺リノベ

築60年の木造平屋のリノベ。既存の平面に斜めに木の壁を作り一部天井を勾配天井として空間に変化をつけました。猫間障子から差し込む柔らかい光。黒板としても使えるグレーの壁。壁に小さく設けられた愛猫用通路。家具的なキッチンと業務用キッチンの組み合わせなど多くの工夫が盛り込まれた家となりました。(photo:新 良太)
(敷地面積: 41.52坪 延床面積: 23.5坪)


十二所の家

ご両親が住むとても綺麗に手入れをされた庭の一部に計画されたこの住宅は周りの景色をどのように切り取るかを考えて計画しました。今回はダイニングテーブル、ベット、置き家具もデザインさせていただきました。(photo:新 良太)
(敷地面積: 51.6坪 延床面積: 32坪)


中央の家

狭小地に建つ木造三階建て住宅です。準防火地域ですがLDKには木製建具を採用。1階と3階に水回りと個室を分散させLDKをできるだけ大きく取りました。螺旋階段が空間のアクセントになっています。(photo:新 良太)
(敷地面積: 13.9坪 延床面積: 25坪)


千葉の家

1階にLDK、2階部分に個室と水回りを配置しています。各個室へはLDKの上部にある吹き抜けに面した廊下を通り、また父親の書斎も2階の吹き抜けの一部にありますのでいつでも家族の気配が感じられるプランとなっています。車2台が収納できるビルトインガレージから直接玄関へ行けますので雨の日も濡れずに部屋へ入れます。(photo:新 良太)
(敷地面積: 56坪 延床面積: 41坪)


木立の中の家

緑に囲まれた店舗併用住宅です。南側に山があり光が入りにくい敷地でしたので、どのように光を取り込むか、緑が多くある周りの景色をどのように切り取るかを大切に考えて設計しました。1階部分にある店舗はworks内の店舗・アトリエ等のカテゴリー、sawvih(そうび)で紹介しています。(photo:新 良太)
(敷地面積: 45坪 延床面積: 31坪)


小さな写真室のある家(リノベーション)

既存間仕切りを解体し大きなワンルームとし、家族全員が楽しく暮らせる場所を作るということを考えました。部屋の中心には3メートル近くある大きなテーブルがあります。また、黒板塗料を塗った青い壁、両親や友人が泊まりに来た時に間仕切ることが出来る可動式壁など、楽しい仕掛けがいっぱいの家です。(photo:新 良太)
(リノベーション)


桜山の家

1階部分には薪ストーブのある応接間と個室、2階部分にはLDKと家族全員で使うワークスペースがあります。海の側に建つ家らしく、開放的でおおらかな空間となっています。
(敷地面積:54坪 延床面積:43坪)


富士の家

ビルトインガレージ、ペット室、オープンなキッチンに富士山を望むデッキテラス。住む人の夢がたくさん詰まった家となりました。ダイニングを通らずにキッチンからパントリー、バックヤード、洗濯室に繋がる動線により家事を効率的する事が出来ます。(photo:新 良太)
(敷地面積: 62坪 延床面積: 62坪)


長谷の家

窓からは鎌倉の海と江ノ電、長谷寺が見えるロケーション。夏は3階のデッキから花火も見えます。とにかく多くの風と光が入る空間となりました。将来は留学生を受け入れたいというクライアントの要望から、和室を用意してあります。(photo:新 良太)
(敷地面積: 23坪 延床面積: 34坪)


S教授の家

昔からある落ち着いた住宅街に建つ住宅です。緑が多く環境がいい地域なので、廻りとの調和を考え外壁の仕上げは木を貼っています。家の中の窓からも緑が楽しめるよう窓の位置を工夫しました。
(敷地面積: 63坪 延床面積: 44坪)


大船の家

ご夫婦とも料理をするお宅ですので、アイランドキッチンやパントリーに回遊性を持たせ、家族で料理を作っていても動線がぶつからないよう工夫しています。また、趣味の自転車のための部屋が玄関から直接靴を脱がずにアプローチできるようにしました。
(敷地面積: 50坪 延床面積: 44坪)


浜須賀の家

縦長の敷地の両端に道路が接していて、それぞれの道路からの出入り口を土間でつなげました。また、住宅密集地でもある中、窓の位置を工夫し、プライバシーを保ちながら風の抜ける窓、光をよぶ窓が内部空間を豊かにしています。
(敷地面積:30坪 延床面積:29坪)


円蔵の家

週末に自宅でゆったりとお風呂に入りたいという希望から実現した住宅です。浴室から続くバスデッキでくつろぐことも出来ます。
(敷地面積:105坪 延床面積: 45坪)


みはる野の家

計画地はとても景色の良い場所。リビングとダイニングに挟まれる形で大きな屋根付きのデッキを作りました。雨の日でも外に出て景色を楽しみながらくつろぐ事が出来ます。
(敷地面積: 49坪 延床面積: 37坪)


北鎌倉の家

周りは沢山の木があり、まるで森の中に建っているような家です。室内も自然素材を多く使用し、ダイニングの一部に小上がりを作り、畳の上でゴロンと寝っ転がりながら外の景色を楽しめます。
(敷地面積:52坪 延床面積:24坪)


新川崎の家

住宅地に建つ二世帯住宅です。親世代を1階部分に、子世帯を2階部分にし、孫の部屋を中2階にすることで、孫の部屋を介して緩やかなコミュニケーションが取れるよう計画しました。
(敷地面積:52坪 延床面積:45坪)


白夜と灯台(kobuneのスタジオ)

写真家の個人スタジオ。白夜のような真っ白い雰囲気の撮影スタジオと灯台小屋のようなザラっとした雰囲気の作業部屋。二つの全く違う世界観が共存しています。(photo:新 良太)


sawvi(そうび)

鎌倉市にある麹屋さん。麹にまつわるいろいろなものを扱っています。(photo:新 良太)


ウルワシ堂

東京都文京区千駄木のよみせ通りにある美容室です。築40年以上経ったビルの1階にあり、古くから有る建物と違和感のないファサードになっています。コンクリート躯体に、木材や白い壁を配した清潔感のある店内と、友人の家のダイニングにいるような、ゆったりした心持ちになれる待合が特徴です。(photo:新 良太)


umibecafe

元歯科医院だった場所をカフェに改装、逗子海岸から歩いて数分のロケーションです。家のリビングで寛いでいるようなリラックスできる空間を作りました。(photo:新 良太 )


scrumpcious

真鶴半島にある築40年近くになる民宿を改修し、住居兼アトリエとした計画。手仕事のオリジナル制作をするアトリエ兼ショールームは見晴らしのいい2階へ。住居部分は落ち着いた1階へとゾーン分けをしました。壁の一部を撤去し、部屋と部屋を繋げる等、プランに回遊性を持たせました。


sunshine+cloud

葉山の一色海岸近くにあるSHOP。有名な老舗和菓子屋の保養所を店舗として改修。元からある場の雰囲気や景色を生かしながら、気持ちの良い空間を作り上げる事を意識しています。(photo:古谷 昭洋)


overeasy

sunshine+cloudに併設されているカフェです。ここを訪れる人たちが、この場所を通して自然とコミュニケーションが生まれるように、という思いから客席の真ん中には大きなテーブルが置いてあります。(photo:古谷 昭洋)


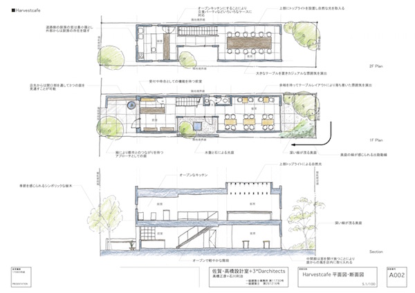
四谷PJ(計画案)

四谷駅からすぐの新宿通り沿いに計画されたカフェ計画です。細長く小さな敷地にカフェを、そこから150mほどの敷地にテイクアウトのコーヒースタンドを計画しました。
(共同設計者:株式会社3*D空間創考舎一級建築士事務所)


木工

建築設計と並行して木工作品を作っています。自分でかたちを考えて、自分の手でコツコツとつくる。そこにはものづくりの原点があるような気がします。食事の時、自分の手で一生懸命つくった道具を使い、食事をする。大仰なことでは無いのですが、ほんの少しだけ生活が豊かになった気がします。建築においても、このような小さな豊かさが、たくさん詰まった住宅をつくっていきたいと思っています。